Завдання

Ландшафтний дизайн лаунж зони біля басейну с. Вишеньки

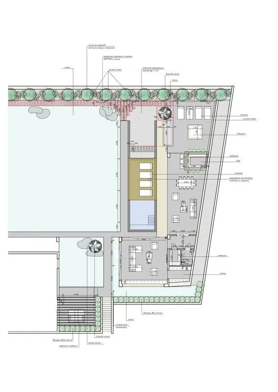
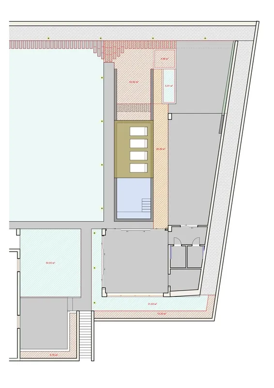
Основна мета проєкту – гармонійне поєднання матеріалів та оздоблення зони басейну. Серед побажань замовників – облаштування кількох бонсаїв, оздоблення стін природніми матеріалами – деревиною, створення барної стійки, зони джакузі.

Для однієї із зон, де не було чіткої концепції, ми запропонували встановити гойдалку, що гармонійно вписалася в простір із видом із дитячої кімнати. Також розробили концепцію освітлення для території.

Вихідні дані
    • Облаштовано лаунж-зону, альтанку, криту зону відпочинку та басейн.
    • Зроблена система септика, дренажне поле, свердловина.
    • Побудований паркан по периметру ділянки.
Проєкт дизайну

Дизайн проєкт зони басейну – баланс естетики та спокою
Цей проєкт став для нас цікавою задачею: потрібно було створити гармонійний простір навколо басейну, де кожна деталь — від матеріалів до світла – сприяє відпочинку, естетиці та природному затишку.

Замовники мали кілька конкретних побажань: живі бонсаї, оздоблення стін натуральним деревом, зона джакузі та барна стійка, яка б доповнила атмосферу розслабленого лаунжу. Одна із зон не мала чіткого функціонального призначення – тож ми запропонували нестандартне, але дуже влучне рішення: гойдалку, яку видно з дитячої кімнати. Це додало простору легкості, руху та гри.

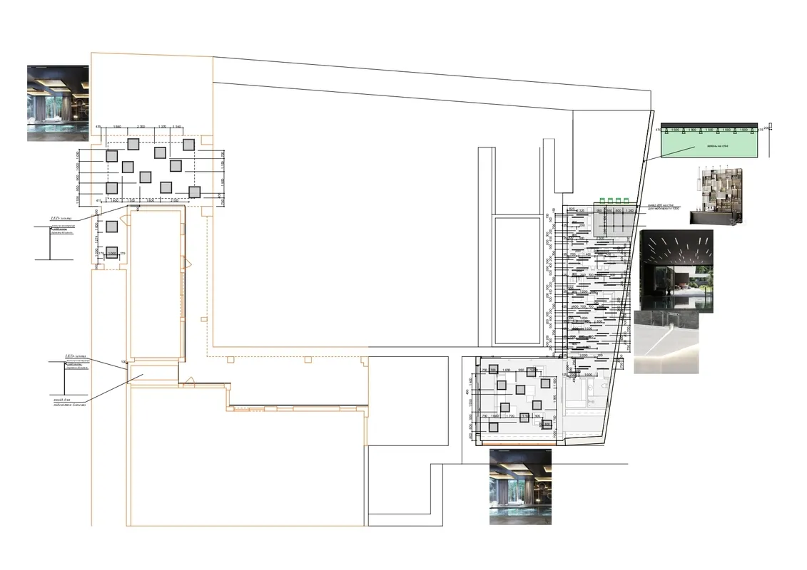
Ми також розробили концепцію архітектурного освітлення для всієї ділянки – щоб у вечірній час локація виглядала не менш затишно й продумано, ніж вдень.

З технічного боку все реалізовано чітко й системно:

    • виконано повний комплект креслень згідно з внутрішніми стандартами,
    • підготовлено візуалізації та розгортки (у цьому випадку — у 3ds Max),
    • забезпечено повний супровід — від концепції до фінального пакета документації.

В основі – вже облаштовані елементи: басейн, лаунж-зона, альтанка, критий відпочинок, паркан по периметру, система септика, дренаж і свердловина. Ми інтегрували всі нові ідеї так, щоби простір виглядав цілісним і логічним, не порушуючи вже наявну інфраструктуру.

Цей проєкт – приклад того, як ідеї замовників та наше бачення можуть створити справжнє місце сили для відпочинку.