Завдання

Дизайн проект інтер'єру одно кімнатної квартири ЖК AuRoom

Замовник – іноземець. Дизайн розроблений для двох однакових квартир на різних поверхах ЖК AuRoom в Києві, призначених для здачі в оренду. Будівельні роботи виконувала обрана замовником бригада. Проєкт передбачав авторський нагляд.

Основні побажання замовника:

    • використання бетону та цегли в поєднанні з теплими дерев’яними відтінками;
    • максимально функціональне планування.
Вихідні дані
    • Квартира в преміум-сегменті;
    • Установлені забудовником вікна, вхідні двері та радіатори опалення;
    • Розведена система опалення;
    • Передбачені підключення для холодної/гарячої води, каналізації та вентиляції;
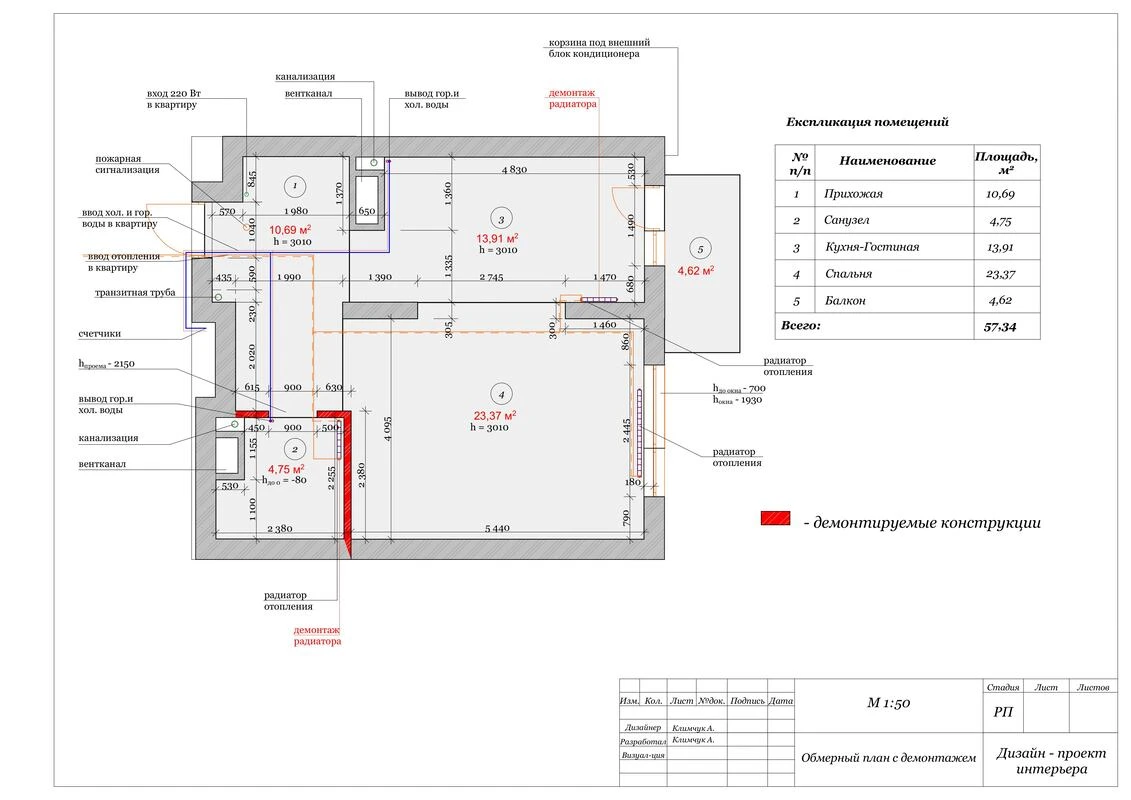
    • Площа приміщення – 57 кв.м.
Проєкт інтер'єру

Сучасний інтер’єр – з характером і турботою про комфорт
У цьому проєкті ми працювали з чітким запитом – створити простір, який буде не лише сучасним і функціональним, а й матиме свій характер. Замовник хотів, щоб усе в квартирі працювало на зручність щоденного життя, але водночас не було банальним чи «типовим».

Одним із ключових рішень стала оптимізація простору: ми запропонували перенести санвузол, завдяки чому вдалось організувати повноцінну гардеробну просто в спальні. А ще вдалося скоротити нефункціональний коридор – тепер кожен метр квартири працює на комфорт.

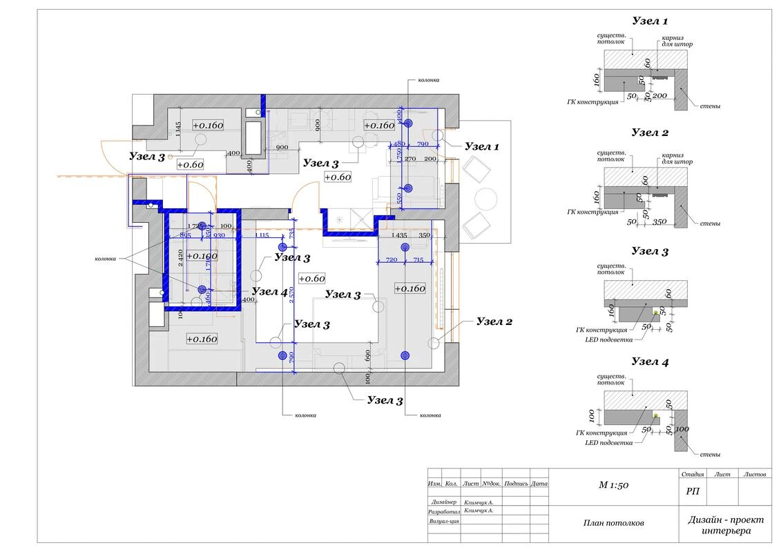
Технічну частину ми, як завжди, оформили чітко та надійно: підготували повний набір креслень у стандартному пакеті – з візуалізаціями та розгортками. Усі плани виконані за внутрішніми стандартами, для того щоб будівельники могли точно реалізувати все, що ми задумали.

Окремо здійснювався авторський нагляд – ми були поруч на всіх етапах, щоб ідея не загубилася у процесі реалізації.

Візуалізації

Наші візуалізації наочно демонструють, як виглядатиме готовий інтер’єр, і допомагають замовникам уявити результат ще до початку будівельних робіт.

Авторський нагляд

Обраний замовниками авторський нагляд забезпечує контроль над реалізацією проєкту. Ми підтримували постійний зв’язок із замовником і будівельниками. Виїзди на об’єкт проводилися 1-2 рази на тиждень для контролю робіт та вирішення технічних питань. Додатково організовували поїздки для вибору матеріалів. У процесі роботи узгоджували всі вузли, забезпечували доставку матеріалів, здійснювали контроль їхнього монтажу, а також допомагали у виборі та контролі підрядників. Завершення ремонту відбувалося під час повномасштабного вторгнення в Україну, тому комунікація із замовником здійснювалася онлайн.